Property
Beds
2
Full Baths
2
1/2 Baths
None
Year Built
2025
Sq.Footage
1,736
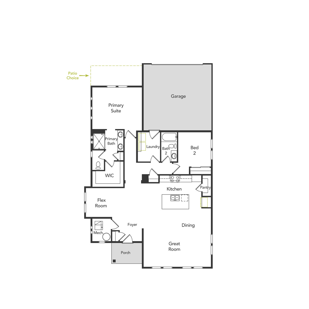
You must visit our 55+ community, Springhouse Village in Daybreak! The Rigel is an open and well-designed floor plan, featuring a large great room with a fireplace, 2 covered patios, a caf kitchen which includes a built-in microwave, wall oven and full range and hood. Other features include Stainless Steel Appliances, large primary bedroom and bath w/walk in shower. This home is a must see! Call now to set up a time to visit Springhouse Village, and tour the"Springhouse", our 10,000 sf clubhouse featuring exercise rooms, pool, lawn chess, bocce ball, pickle ball, golf simulator and much more! Call for more details or to set up a time to visit this community. **Photos are of Model Home** (Rigel Lot 608)
Features & Amenities
Interior
-
Other Interior Features
Walk-In Closet(s)
-
Total Bedrooms
2
-
Bathrooms
2
-
Cooling YN
YES
-
Cooling
Central Air
-
Fireplace YN
YES
-
Heating YN
YES
-
Heating
Fireplace Insert, Central, Natural Gas, Forced Air
-
Main Level Bedrooms
2
-
Pet friendly
Yes
Exterior
-
Garage
Yes
-
Garage spaces
2
-
Construction Materials
Stucco
-
Parking
Attached
-
Patio and Porch Features
Covered
-
Pool
No
Area & Lot
-
Lot Size(acres)
0.07
-
Property Type
Residential
-
Property Sub Type
Single Family Residence
-
Architectural Style
Rambler/Ranch
Price
-
Sales Price
$569,990
-
Tax Amount
1.0
-
Zoning
1301
-
Sq. Footage
1, 736
-
Price/SqFt
$328
HOA
-
Association
Yes
-
Association Fee
$357
-
Association Fee Frequency
Monthly
-
Association Fee Includes
N/A
School District
-
Elementary School
Jordan
-
Middle School
South Jordan
-
High School
Herriman
Property Features
-
Stories
1
-
Accessibility Features
Accessible Hallway(s)
-
Association Amenities
Clubhouse, Concierge, Fitness Center, Pool, Snow Removal
-
Senior Community YN
YES
-
Sewer
Public Sewer
Schedule a Showing
Showing scheduled successfully.
Mortgage calculator
Estimate your monthly mortgage payment, including the principal and interest, property taxes, and HOA. Adjust the values to generate a more accurate rate.
Your payment
Principal and Interest:
$
Property taxes:
$
HOA fees:
$
Total loan payment:
$
Total interest amount:
$
Location
County
Salt Lake
Elementary School
Jordan
Middle School
South Jordan
High School
Herriman
Listing Courtesy of Julie Israelsen , Advantage Real Estate, LLC
RealHub Information is provided exclusively for consumers' personal, non-commercial use, and it may not be used for any purpose other than to identify prospective properties consumers may be interested in purchasing. All information deemed reliable but not guaranteed and should be independently verified. All properties are subject to prior sale, change or withdrawal. RealHub website owner shall not be responsible for any typographical errors, misinformation, misprints and shall be held totally harmless.
Principal Broker
MicahPearson
Call Micah today to schedule a private showing.
* Listings on this website come from the FMLS IDX Compilation and may be held by brokerage firms other than the owner of this website. The listing brokerage is identified in any listing details. Information is deemed reliable but is not guaranteed. If you believe any FMLS listing contains material that infringes your copyrighted work please click here to review our DMCA policy and learn how to submit a takedown request.© 2024 FMLS.